长沙888集团恒伟置业有限公司 湘江豪生酒店餐饮区域招商公告
发布时间:2022-11-06 17:20 打印文件

一、招商单位

长沙恒志房地产开发有限公司湘江豪生酒店分公司

项目介绍: 长沙湘江豪生酒店位于湘江西岸的湖南省金融中心—滨江新城,与文化地标—三馆一厅隔江相望。共有客房60间,床位数84个;西餐厅、中餐包厢及小型宴会厅,餐位总数124个。

二、招商区域描述:

(一)招商区域基本信息:

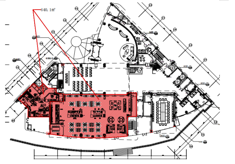
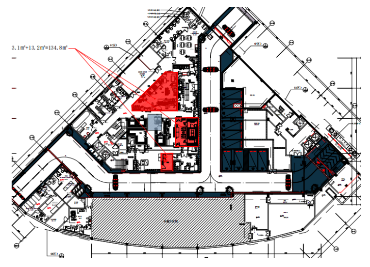
酒店建筑面积8132.2㎡,餐饮可租赁面积包括一楼、二楼及负一楼的准备工作间共1379.5平方米(不包含豪生厅、昆西厅),其中营业区域面积1244.7平方米,辅助区域面积134.8平方米。具体如下图所示:

image.png

(二)招商户型示意图:

????1、一楼(西餐厅、大堂吧、西厨房)红线区域范围

image.png?

?

?

2、 二楼(中餐厅包厢、中厨房)红线区域范围

image.png?

3、负一楼(西饼房、西厨房、操作间海鲜池)红线区域范围

image.png?

?

、招商简章

招商对象:

具有十年以上高端餐饮经营经验长沙市本地高端商务餐饮品牌

招商业种餐饮

招商要求:

1、租赁方需合法经营,不得损害酒店利益及品牌形象。

业主方不对承租方经营风险负责;

2、配合酒店经营,按豪生酒店品牌标准提供早餐

3、配合业主方,保障相关商务接待工作的顺利开展;

4、承租方需按要求提供收银日报表及月度收入报表;酒

店拥有随时抽查收银机系统权限。

5、二次装修投入由承租方负责,租赁方经营业态和装修

方案需报业主方审批同意后方可执行。安全责任由承租方全权负责。

租赁年限:10年。

四、招商联系方式:

联系人:李女士?18608402325

联系地址:长沙市岳麓区滨江景观道168号长沙湘江豪生酒店

五、招商公示期:

2022年115日起至2022年1111日。

六、招商方式

招商信息发布后在公示期内报名响应的人选在2个或以上则采取集团招采交易平台(场所)公开招租、进场交易的方式确定承租方,如只有1个报名响应,则以商务谈判方式确定合作条件及承租方。

七、投诉联系方式:

1、联系部门:长沙888集团恒伟置业有限公司产业协作部(酒店)

2、联系电话:0731-82909321

3、联系地址:长沙市岳麓区先导路湘江时代A1座2层

八、举报联系方式:

1、联系部门:长沙城市发展集团有限公司纪检监察室;

2、联系电话:0731-88797919

3、联系地址:长沙市岳麓区先导路湘江时代A1座13A层。 ?

?

?

长沙恒志房地产开发有限公司

长沙湘江豪生酒店分公司

??????????????????????????????2022年1133