长沙888集团商业管理有限公司 贺体项目原家乐福区域招商公告
发布时间:2022-09-14 18:10 打印文件

一、招商单位:长沙888集团商业管理有限公司

二、招商位置描述

项目位于长沙市天心区劳动路348号新世纪体育文化广场贺龙体育场主馆负一层,共层,建筑面积为23980.68(其中停车场面积3344㎡、夹层面积4670㎡,只能作为停车场使用)。项目紧邻芙蓉中路及劳动路,周边商业配套丰富,交通四通八达,临3号线地铁口

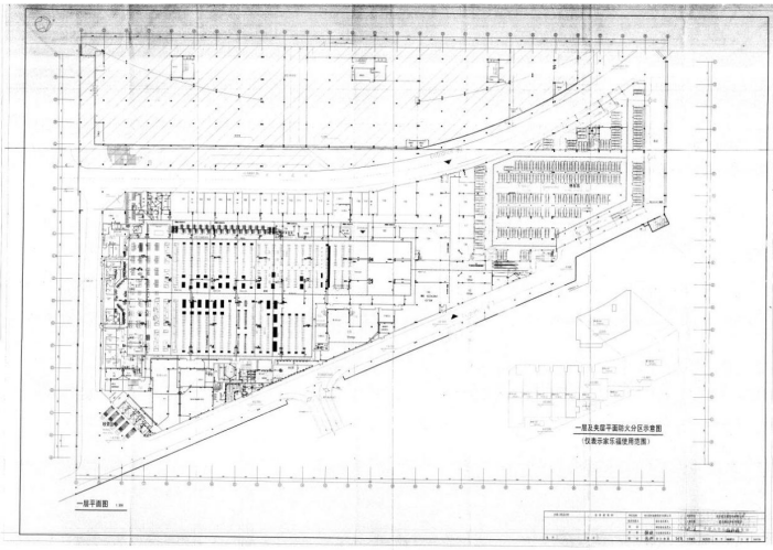
三、项目相关图纸

image.png

image.png?

?image.png

?

、招商简章

招商对象:有先进经营理念,良好经营实力和丰富经营经验的品牌经营者;

招商业态:大型商超、家居卖场、体育运动场馆、休闲文娱、办公类;

产权性质:商业;

交付方式:现状交付

租赁方式:整体租赁;

工程条件:

1、层高:6.4米(以现场实际测量为准);

2燃气:无,可自行开通;

3、电负荷:2800KVA,变压器3台,双回路;

4消防:一次消防已通过;

5、烟道及隔油池:暂无。

装修要求:严禁破坏房屋内外部主体结构,装修装饰书面方案报政府相关职能部门及我司审批后方可进行装修施工,通过政府相关职能部门及我司验收后方可投入使用。

关于报名有效性的说明

第一步:网上登记,在招采平台(https://erp.csudgroup.com:9982/)发布的招商公告内点击“我要报名”,登记业态品牌名称、联系人及联系方式;

第二步:登记成功后在招商公示报名期内至长沙888集团商业管理有限公司招商运营部提交公司介绍及品牌资料,并就意向物业进行初步商务洽谈

第三步:双方洽谈后在招商公示报名期内提交租赁意向函,并缴纳意向金(意向物业2个月租金)至指定账户,以上三步均完成后方视为有效报名。?

、招商联系方式

1、联系人先生15974208010

2、联系地址:长沙市天心区贺龙体育场童心MALL商场T002号长沙888集团商业管理有限公司招商中心

招商公示期

2022915日至2022921

、投诉联系方式

1联系部门:888集团集团资产管理部;

2联系电话:0731-88222799;

3联系地址:长沙市岳麓区先导路湘江时代商务广场A1座13层。

、举报联系方式

1联系部门:长沙城市发展集团有限公司纪检监察室;

2联系电话:0731-88797919;

3联系地址:长沙市岳麓区先导路湘江时代商务广场A1座13A层。

?


长沙888集团商业管理有限公司

2022年9月14日